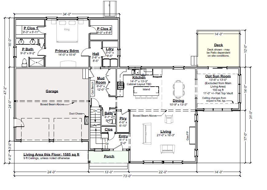
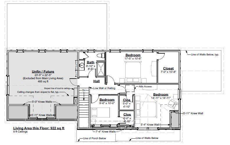
Introducing Washburn Farm, Kittery's newest cul-de-sac community of nine single family homes nestled in a peaceful wooded setting. Just beginning construction and still time to customize your home plan and choose from our selection of spacious lots each with a beautiful wooded backdrop. The 'Carbonara' floor plan offers flexibility for your lifestyle, the first floor offers a family room wing with office and a spacious open floor living area . The 21' living room is centered around the cozy gas fireplace, a beautiful space for entertaining. Upstairs is 3 bedroom, one being a master suite with full bath and dual closets. 2nd floor laundry being a great convenience. The Washburn Farms otherwise will include high-end finish package with a primary bath tile shower, hand finished hardwood flooring, custom kitchen with island, sparkling stone countertops, high ceilings, beautiful trim work and much more! Conveniently located just a short drive to Kittery foreside, major routes, and local beaches. Don't miss your chance to build your dream home in one of Maine's sought after seaside communities.

Listing Tools

Property Details of 2 Washburn Farm Lane, Unit 1

Property Details

Interior Features

Exterior Features

Community

Map Location

Listing data is derived in whole or in part from the Maine IDX & is for consumers' personal, non commercial use only. Dimensions are approximate and not guaranteed. All data should be independently verified. ©2025 Maine Real Estate Information System, Inc. All Rights Reserved. equal opportunity housing logo   Privacy Policy

Williams Realty Partners participates in ©2025 Maine Listings Internet Data Exchange program, allowing us to display other Maine IDX Participants' listings. This website does not display complete listings. Certain listings of other real estate brokerage firms have been excluded. Mortgage figures are estimates. Check with your bank or proposed mortgage company for actual interest rates. This product uses the FRED® API but is not endorsed or certified by the Federal Reserve Bank of St. Louis.

Hi there! How can we help you?

Contact us using the form below or give us a call.

Send Us A Message:

I agree to receive marketing and customer service calls and text messages from Williams Realty Partners. To opt out, you can reply 'stop' at any time or click the unsubscribe link in the emails. Consent is not a condition of purchase. Msg/data rates may apply. Msg frequency varies. Privacy Policy.

Do not fill in this field:

This site is protected by reCAPTCHA and the Google Privacy Policy and Terms of Service apply.

Hi there! How can we help you?

Contact us using the form below or give us a call.

Send Us A Message:

Do not fill in this field:

This site is protected by reCAPTCHA and the Google Privacy Policy and Terms of Service apply.

Hi there! How can we help you?

Contact us using the form below or give us a call.

Send Us A Message:

Do not fill in this field:

This site is protected by reCAPTCHA and the Google Privacy Policy and Terms of Service apply.

Do not fill in this field:

This site is protected by reCAPTCHA and the Google Privacy Policy and Terms of Service apply.

Do not fill in this field:

This site is protected by reCAPTCHA and the Google Privacy Policy and Terms of Service apply.

Do not fill in this field:

This site is protected by reCAPTCHA and the Google Privacy Policy and Terms of Service apply.

$

Do not fill in this field:

This site is protected by reCAPTCHA and the Google Privacy Policy and Terms of Service apply.